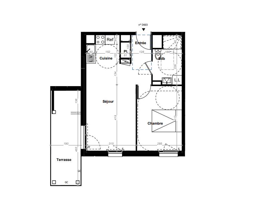
L’Agence Locale vous propose à la vente ce T2 de 42 m².
Un appartement type 2 récent au 1er étage, avec séjour ouvert sur une cuisine équipée, chambre spacieuse et une terrasse .
Situé à Orvault quartier de la Cholière, emplacement stratégique à proximité immédiate des transports en commun, des écoles, commerces et du centre-ville de Nantes.



