3 Rue Paul Bellamy, 44 000 Nantes
02 85 52 42 24
contact@lagencelocale.com

Maison/Villa61 m²
273 520€

Appartement42.09 m²
195 900€
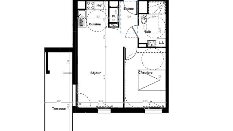
Appartement81.56 m²
309 500€

Appartement42.09 m²
191 500€

Appartement81.56 m²
302 000€

Appartement81.56 m²
295 400€

Appartement45.97 m²
185 850€

Appartement48.72 m²
204 400€

Appartement37.12 m²
211 000€

Appartement42.09 m²
185 000€