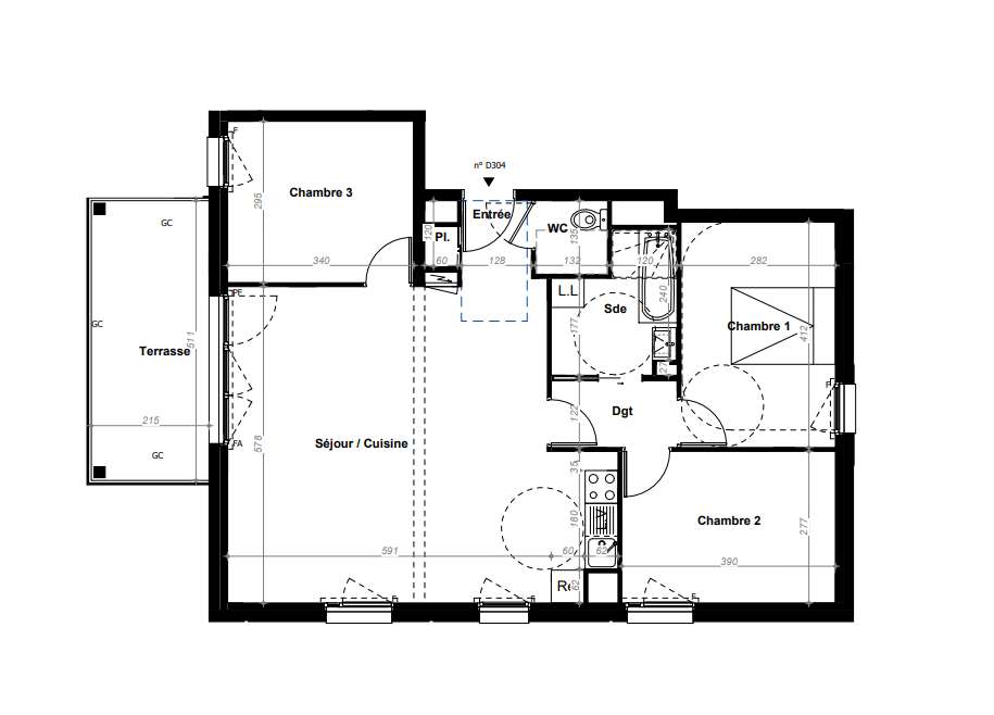
L’Agence Locale vous propose à la vente ce T4 de 81m2 .
Un appartement type 4 récent au 3ème étage, avec séjour ouvert sur une cuisine équipée, 3 chambres spacieuses et une terrasse de 8.89 m2.
Situé à Orvault quartier de la Cholière, emplacement stratégique à proximité immédiate des transports en commun, des écoles, commerces et du centre-ville de Nantes.



