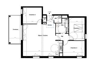
L’Agence Locale vous propose à la vente ce T4 de 81 m².
Un appartement type 4 récent au 7ème et dernier étage avec ascenseur se compose d’une cuisine équipée, ouverte sur le séjour, de 3 chambres spacieuses et d’une terrasse de 10.96m2.
Situé à Orvault quartier de la Cholière, emplacement stratégique à proximité immédiate des transports en commun, des écoles, commerces et du centre-ville de Nantes.


